IMPRESSIVE STAND ALONE BUILDING TO MAKE A REAL STATEMENT

Select Commercial are pleased to offer this outstanding building for Lease on busy Payneham Road.
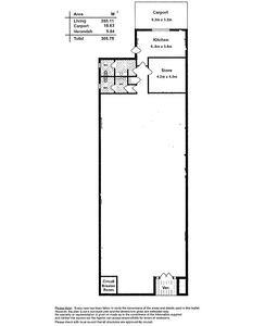
Key features include:

- Suitable for a variety of uses including offices/retail/consulting (stcc)
- Open Space floor plan
- Area approx. 300sqm
- Kitchen Facilities -
- Male/Female toilets
- Highly visible building
- 5 valuable off street car parks at rear -
- Closely situated to Glynde Cnr
- Will suit a variety of uses

For details contact George Tsiolis on 0411 423 170 or Kathy Tsiolis on 0413 434 202
Office 8261 9433

RLA 147463

© Copyright Select Business & Property Group 2016 - 2026 | Website by MultiArray